Дом по адресу Краснодар, , за 4490000 р.

Адрес Краснодар
Цена 4 490 000 р.
Площадь дома 0 м2, участка 0 м2
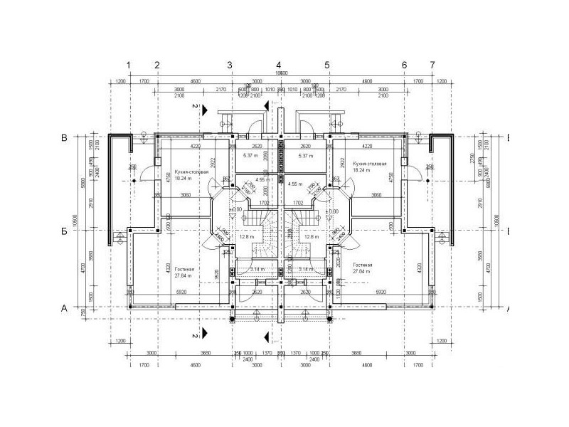
1/2 дуплекса площадью 146 кв.м. Участок 500 кв.м. в тихом месте на берегу реки Кубань в поселке Яблоновском. Всего в 7 минутах до Сити-Центра, в 10 минутах от "Меги" Фундамент: сваи 3м + ростверк 1,1м Перекрытия: монолитные Стены: Поромакс + облицовка кирпичом "Сахара" 1й этаж: прихожая, кухня - 18кв.м., гостиная - 27,8 кв.м., сан.узел - 4,5кв.м., бойлерная - 5кв.м. 2й этаж: три спальни: 23,5 - 13 - 21 кв.м., ванная. Витражные металлопластиковые окна 2го этажа открывают прекрасный вид на реку. Балкон. Внутренняя отделка: стяжка, штукатурка, разводка электропроводки, 2-х контурный газовый котёл. Кровля: мягкая - битумная черепица KATEPAL Коммуникации: электричество, вода, канализация - септик. Газ. Рядом магазин, школа. Свидетельства на дом и землю.
Объявление № 8864711
Дата подачи:
21 июля 2017 г. 23:39
Дата обновления:
21 июля 2017 г. 23:39
Просмотров 209 Хотите продать быстрее?

Продавец
Иван
email: info@key-house.net
Показать номер телефона
Пожаловаться
Комментарии:
Добавить